
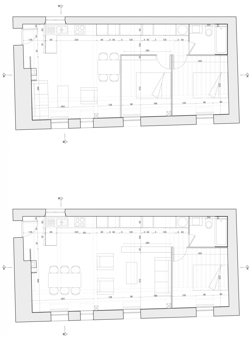
L’important pour les clients était de donner une sensation d’espace même si l’appartement est petit et tout en longueur avec une seule façade éclairée. Nous avons tout naturellement privilégié la solution grande pièce à vivre avec cuisine ouverte et intégrée dans une «niche» dans le prolongement des placards. Afin de dégager un maximum de surface et de créer une sensation d’espace dans ce petit appartement, tout le mur Est a été pensé comme un mur de «service» intégrant la cuisine qui y est déplacée et intégrée comme une alcôve colorée. Le mur se poursuit par un ensemble de placards et rangements permettant de libérer tout l’espace pour y circuler.

La cuisine et les placards sont réalisés à partir de caissons ikea et d’éléments fabriqués en medium, les portes sont faites par le menuisier en medium laqué. Le plan de travail en agglo hydrofuge revêtu d’un mortier auto-lissant donne un aspect minéral au plan de travail. Le petit fenestron existant dans la cuisine apporte une pointe de lumière nécessaire et que l’on retrouve dans l’entrée grâce à la baie vitrée fixe qui sépare la sépare de la cuisine.

Seules les poutres principales ont été conservées, nettoyées, dégagées.

Dans la chambre, les solives ont été conservées elles-aussi, afin d'animer le volume de ce petit espace.

Dans le salon: étagère / cloison conçue pour l’appartement, réalisée en medium.

Enduits ciment teinté étanches dans la salle de bains sol / murs / meuble.

Le mur de placard et l’étagère / cloison permettent de tout ranger pour dégager l’espace de vie.

En chantier

Plans version T2 en haut, T3 en bas