Aller au contenu principal

Maison des Associations

Trappes (78)

Image
Légende

 

 

La transformation des logements de fonction Saint-Exupéry en locaux associatifs a pour objectif la valorisation des échanges entre les associations. Pour cela, nous avons choisi de travailler fortement l’entrée et l’accueil en amenant les utilisateurs à pouvoir en faire usage, à s’y réunir, y travailler. Ces aménagements, notamment l’ouverture des espaces d’accueil, apportent une connotation de bâtiment public et valorisent ainsi l’action de la ville pour le monde associatif.

Image
Légende

Hall d’entrée et salle de réunion à gauche. Banquettes en béton cellulaire enduit.

Image
Légende

Hall d’entrée vu depuis la porte.

Image
Légende

Une couleur pour chaque association.

Image
Légende

Nouvelle baie vitrée acier à l’emplacement des loggias.

Image
Légende

Intérieurs salles associatives.

Image
Légende

Hall d'entrée.

Image
Légende

RdC.

Image
Légende

Façade.

Image
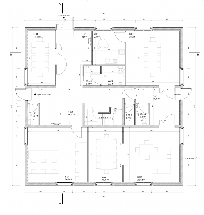
Légende

Plan RdC.

Image
Légende

Plan 1er étage.

Image
Localisation : Trappes (78)
Maîtrise d'ouvrage : Ville de Trappes
Budget : 360 400 € HT
Surface : 400 M²
Mission : Maîtrise d'oeuvre complète
Crédit photos : Clément Guillaume
Année : livré en 2011

La transformation des logements de fonction Saint-Exupéry en locaux associatifs a pour objectif la valorisation des échanges entre les associations. Pour cela, nous avons choisi de travailler fortement l’entrée et l’accueil en amenant les utilisateurs à pouvoir en faire usage, à s’y réunir, y travailler. Ces aménagements, notamment l’ouverture des espaces d’accueil, apportent une connotation de bâtiment public et valorisent ainsi l’action de la ville pour le monde associatif.

Maison des Associations

Trappes (78)

Image
Légende

 

 

La transformation des logements de fonction Saint-Exupéry en locaux associatifs a pour objectif la valorisation des échanges entre les associations. Pour cela, nous avons choisi de travailler fortement l’entrée et l’accueil en amenant les utilisateurs à pouvoir en faire usage, à s’y réunir, y travailler. Ces aménagements, notamment l’ouverture des espaces d’accueil, apportent une connotation de bâtiment public et valorisent ainsi l’action de la ville pour le monde associatif.

Image
Légende

Hall d’entrée et salle de réunion à gauche. Banquettes en béton cellulaire enduit.

Image
Légende

Hall d’entrée vu depuis la porte.

Image
Légende

Une couleur pour chaque association.

Image
Légende

Nouvelle baie vitrée acier à l’emplacement des loggias.

Image
Légende

Intérieurs salles associatives.

Image
Légende

Hall d'entrée.

Image
Légende

RdC.

Image
Légende

Façade.

Image
Légende

Plan RdC.

Image
Légende

Plan 1er étage.

Image
Localisation : Trappes (78)
Maîtrise d'ouvrage : Ville de Trappes
Budget : 360 400 € HT
Surface : 400 M²
Mission : Maîtrise d'oeuvre complète
Crédit photos : Clément Guillaume
Année : livré en 2011

La transformation des logements de fonction Saint-Exupéry en locaux associatifs a pour objectif la valorisation des échanges entre les associations. Pour cela, nous avons choisi de travailler fortement l’entrée et l’accueil en amenant les utilisateurs à pouvoir en faire usage, à s’y réunir, y travailler. Ces aménagements, notamment l’ouverture des espaces d’accueil, apportent une connotation de bâtiment public et valorisent ainsi l’action de la ville pour le monde associatif.